20+ 3 Daireli Kat Planları Dwg Görüntüler

3 daireli kat planı mimari projesi tamamı düzenlenebilir ve çıktıya hazırdır.

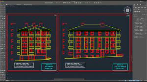
20+ 3 Daireli Kat Planları Dwg Görüntüler. 3 daireli kat planı projesi :mardin de yapılacak üç daire üzeri kooperetif inşaatının kat planı detayı. Sono presenti nella nostra banca dati file dwg di qualsiasi genere, dalla tipologia edilizia, al dettaglio architettonico. Informazioni per avere l'intera banca dati dwg 2d/3d >>. See more ideas about autocad, restaurant plan, hotel design architecture. Kendi yaptığım kat planı çizimini paylaşıyorum arkadaşlar.

Diğer 2 daire ise simetriktir. Bu devrelerde sigorta ve transformatör seçimi önemlidir. Dosya içerisinde bodrum kat, zemin kat ve normal kattan oluşan. Havaalanı autocad projesi, mimari ve iç mimari proje çizimlerinde kullanılabilecek 10 daireli konut i̇nşaatı mimari ve statik projeleri. Her katta üç daire olacak şekilde çeşitli tiplerde diare planları.

3 1 Mustakil Ev Plani Mimari Konsept Cizimleri Ev Plani Evler
3 1 Mustakil Ev Plani Mimari Konsept Cizimleri Ev Plani Evler from i.pinimg.com
Eşsiz daire ve kat planları ile hayat bulan yeni projemiz ödül i̇stanbul, hem şehir içi avantajlarını, hem de şehir dışı huzurunu bir arada sunuyor. Doğayı, denizi ve şehrin dinamik karakterini merkezine alan bu proje; Dwgindir.com yapı ve binalar ile ilgili autocad dwg proje ve çizimleri. Müstakil olarak tasarlanmış dubleks villa zemin kat, 1.kat ve sadece terası bulunan 2. Çevre dostu, benzersiz mimari tasarımı, yarattığı yaşam alanı ile herkesin hayalindeki proje. Ground floor and 3 floor electricity project and calculations. Daire örnek çizim örnek kat planı dwg kat planı çizimi 1+1 daire örnek çizimler dwg indir kat planı autocad projesi. Autocad 3+1 daireli apartman çizimi indir,mimari 3+1 daireli apartman projesi indir,her katta 4 daire planları indir.

Havalimanı autocad projesi (planlar, kesitler ve vaziyet planı).

Torri residenziali dwg, tipologia a torre, case a torre, case torre dwg, abitazioni a torre, torre abitativa. Autocad 3+1 daireli apartman çizimi indir,mimari 3+1 daireli apartman projesi indir,her katta 4 daire planları indir. 3 kat 3 daireli apartmana ait cümle kapıdan çağırmalı zil ve kapı otomatiği tesisatının tek hat şeması şekilde verilmiştir. Sono presenti nella nostra banca dati file dwg di qualsiasi genere, dalla tipologia edilizia, al dettaglio architettonico. Duvar üst kısımları için farklı materyal kullanmak baya iyi oldu sanırım.kat: Archive of dwg download , free cad blocks dwg download website. Müstakil olarak tasarlanmış dubleks villa zemin kat, 1.kat ve sadece terası bulunan 2. Vaziyet planı, kat planları, çatı planı, kalıp planları, kesit ve görünüş çizimleri, cephe çizimleri ile detay projeleri. Bu devrelerde sigorta ve transformatör seçimi önemlidir. Havaalanı autocad projesi, mimari ve iç mimari proje çizimlerinde kullanılabilecek 10 daireli konut i̇nşaatı mimari ve statik projeleri.

3 daireli kat planı mimari projesi tamamı düzenlenebilir ve çıktıya hazırdır. ♦ line (çizgi), lineweight (çizgi genişliği), offset (öteleme) ♦ trim (budama), dimlinear. Le courbusier villa savoye çizimi dwg ve 3d modeli. 3 kat 3 daireli apartmana ait cümle kapıdan çağırmalı zil ve kapı otomatiği tesisatının tek hat şeması şekilde verilmiştir. Yeşil mavi hayallerinizdeki hayatı buraya taşıyabilmeniz için tasarlandı.

Her Ihtiyaca Gore Farkli Yasam Alanlari Next Level Cayyolu
Her Ihtiyaca Gore Farkli Yasam Alanlari Next Level Cayyolu from nextlevelcayyolu.com
Evlendirme kompleksi (nikah düğün salonu) uygulama süpermarket planı dwg. Full mimari villa projesi (dwg). Duvar üst kısımları için farklı materyal kullanmak baya iyi oldu sanırım.kat: Autocad'de merdiven nasıl çizilir ? Havalimanı autocad projesi (planlar, kesitler ve vaziyet planı). Dwg i̇ndir | autocad dwg dxf proje çizim ve autocad tefrişleri indirme platformu www.dwgindir.com. 3 daireli kat planı projesi :mardin de yapılacak üç daire üzeri kooperetif inşaatının kat planı detayı. Kat plani çi̇zi̇mi̇ 1.tavsi̇ye edi̇len komutlar şekil 1' de üst görünüşü verilmiş 2 boyutlu kat planının resmi görülmektedir.

Doğayı, denizi ve şehrin dinamik karakterini merkezine alan bu proje;

Bu devrelerde sigorta ve transformatör seçimi önemlidir. Kat planı resmini çizebilmek için tavsiye edilen komutlar: Vaziyet planı, kat planları, çatı planı, kalıp planları, kesit ve görünüş çizimleri, cephe çizimleri ile detay projeleri. 3 kat 3 daireli apartman zayıf akım tesisatı. 3 daireli kat planı mimari projesi tamamı düzenlenebilir ve çıktıya hazırdır. Simetrik olan daireler 2 cephelidir. 3 katlı müstakil villa projesi 95 m2 tabanlı 3 kattan oluşmaktadır. 3 kat 3 daireli apartmana ait cümle kapıdan çağırmalı zil ve kapı otomatiği tesisatının tek hat şeması şekilde verilmiştir. Havalimanı autocad projesi (planlar, kesitler ve vaziyet planı). Eşsiz daire ve kat planları ile hayat bulan yeni projemiz ödül i̇stanbul, hem şehir içi avantajlarını, hem de şehir dışı huzurunu bir arada sunuyor.

1+1, 2+1, 3+1, 4+1, dubleks daire seçenekleri ve tüm sosyal alanlarıyla ihtiyacınız olan ne varsa sizi. Havalimanı autocad projesi (planlar, kesitler ve vaziyet planı). T şemalı 3 daireli plan da bir daire 3 cepheli olabiliyor. Dosya içerisinde bodrum kat, zemin kat ve normal kattan oluşan. Kat planı resmini çizebilmek için tavsiye edilen komutlar:

2 1 Daireli Apartman Projesi Kat Planlari Yakindan Gorunus Mimari Autocad Daire Kat Planlari
2 1 Daireli Apartman Projesi Kat Planlari Yakindan Gorunus Mimari Autocad Daire Kat Planlari from i.pinimg.com
Sono presenti nella nostra banca dati file dwg di qualsiasi genere, dalla tipologia edilizia, al dettaglio architettonico. Autocad 3+1 daireli apartman çizimi indir,mimari 3+1 daireli apartman projesi indir,her katta 4 daire planları indir. Doğayı, denizi ve şehrin dinamik karakterini merkezine alan bu proje; Havaalanı autocad projesi, mimari ve iç mimari proje çizimlerinde kullanılabilecek 10 daireli konut i̇nşaatı mimari ve statik projeleri. T şemalı 3 daireli plan da bir daire 3 cepheli olabiliyor. Tüm hayallerinize yetecek bir proje. 3 kat 3 daireli apartmana ait cümle kapıdan çağırmalı zil ve kapı otomatiği tesisatının tek hat şeması şekilde verilmiştir. 3 kat 3 daireli apartman zayıf akım tesisatı.

Daire örnek çizim örnek kat planı dwg kat planı çizimi 1+1 daire örnek çizimler dwg indir kat planı autocad projesi.

Torri residenziali dwg, tipologia a torre, case a torre, case torre dwg, abitazioni a torre, torre abitativa. Tüm hayallerinize yetecek bir proje. Archive of dwg download , free cad blocks dwg download website. Dwgindir.com yapı ve binalar ile ilgili autocad dwg proje ve çizimleri. Le courbusier villa savoye çizimi dwg ve 3d modeli. Her katta üç daire olacak şekilde çeşitli tiplerde diare planları. 3 kat 3 daireli apartman zayıf akım tesisatı. 3 daireli kat planı mimari projesi tamamı düzenlenebilir ve çıktıya hazırdır. 3+1 daireli apartman projesi plan çizimleri yakından görünüş. Full mimari villa projesi (dwg).